Pad Mounted Transformer
Model Series
Pad Mounted
Rated Voltage
2.5~34.5kV
Standard
IEEE C57.12.34
Warranty
Two years
Application
Outdoor/Indoor
Farady Three Phase compartmental type pad-mounted transformers are utilized in underground distribution systems. They are particularly suitable for high-rise buildings, apartment complexes, shopping malls, hospitals, schools, commercial structures, and industrial facilities.
General
The standard rating for these transformers ranges from 10 to 167 KVA for single phase, and 45 to 3000 KVA for three phase, with primary voltage ratings ranging from 2,400V to 34,500V. The design of these transformers adheres to the relevant standards set by ANSI/IEEE and NEMA.
Product View and Features
- ANSI/IEEEC57.12.34
- Single or Three phase
- DOE2016 or NEMA TP1 Efficiency
- Indoor or outdoor
- Wound core-coil construction
- Robust steel tank and cabinet assembly
- Dear or live front
- 3 points door locking
- Standard NEMA accessories
- All standard tap configurations
- Dual voltage available
- Corrosion tank protection
Quality Assurance
Quality assurance is an integral part of the process. All electrical testing is per IEEE standards.. Quality of processed parts and subassemblies are the responsibility of the production personnel. Regular quality inspections and spot checking are conducted to make sure that good and consistent quality is achieved and maintained.
Routine Tests
- In-process Core Loss Test
- Transformer Turns Ratio Test
- Winding Resistance Test
- Polarity and Phase Displacement Test
- Insulation Power Factor Test
- Liquid Insulation DBV Test
- No Load Loss & Excitation Test
- Impedance Voltage & Load Loss Test
- Voltage Ratio Test
- Applied Potential Test
- Induced Potential Test
Type Tests
- Temperature Rise Test
- Basic Impulse Level (BIL)
Accessories
![]() |
|
|
|
|
Bushing insert |
Bayonet fuse holder |
Bushing well |
NEMA bushing |
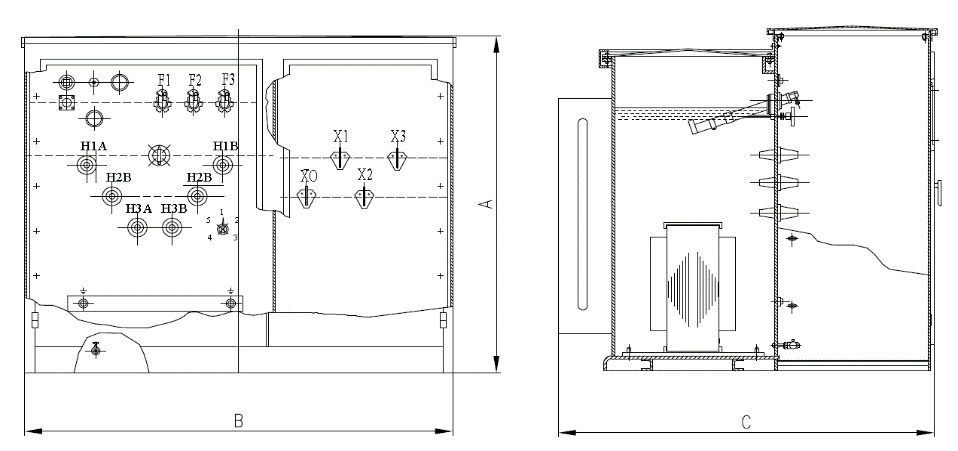
Typical Product Outline

| Table of Liquid Three phase pad mounted transformer (<150kV BIL) Temp rise 65℃ | ||||||
| kVA | A | B | C | Weight | Efficiency % | |
| mm | mm | mm | (kG) | DOE 2016 | NEMA TP1 | |
| 45 | 1300 | 1750 | 1200 | 1150 | 98.92 | 98.60 |
| 75 | 1300 | 1750 | 1200 | 1200 | 99.03 | 98.70 |
| 112.5 | 1300 | 1750 | 1200 | 1250 | 99.11 | 98.80 |
| 150 | 1300 | 1750 | 1200 | 1300 | 99.16 | 98.90 |
| 225 | 1300 | 1750 | 1200 | 1600 | 99.23 | 99.00 |
| 300 | 1300 | 1750 | 1450 | 1900 | 99.27 | 99.00 |
| 500 | 1300 | 1850 | 1450 | 2600 | 99.35 | 99.10 |
| 750 | 1400 | 1850 | 1450 | 3300 | 99.40 | 99.20 |
| 1000 | 1400 | 1850 | 1450 | 4400 | 99.43 | 99.20 |
| 1500 | 1650 | 1850 | 1680 | 5500 | 99.48 | 99.30 |
| 2000 | 1650 | 2350 | 1750 | 6500 | 99.51 | 99.40 |
| 2500 | 1750 | 2350 | 1800 | 7900 | 99.53 | 99.40 |

| Table of Liquid Single phase pad mounted transformer (<150kV BIL) Temp rise 65℃5℃ | ||||||
| kVA | A | B | C | Weight | Efficiency % | |
| mm | mm | mm | (kG) | DOE 2016 | NEMA TP1 | |
| 10 | 610 | 750 | 850 | 280 | 98.70% | 98.40% |
| 15 | 610 | 750 | 850 | 300 | 98.82% | 98.60% |
| 25 | 610 | 750 | 850 | 330 | 98.95% | 98.70% |
| 37.5 | 610 | 750 | 850 | 350 | 99.05% | 98.80% |
| 50 | 610 | 750 | 850 | 370 | 99.11% | 98.90% |
| 75 | 610 | 750 | 950 | 400 | 99.19% | 99.00% |
| 100 | 750 | 950 | 1000 | 450 | 99.25% | 99.00% |
| 167 | 750 | 1200 | 1000 | 700 | 99.33% | 99.10% |







